The Texas Real Estate License Act requires that you be advised that there are agency relationships that govern how a real estate salesperson may deal with you when purchasing, selling or leasing real property. Before you enter into a substantive discussion with Cherokee Real Estate Company, Inc., or any other brokerage, be sure you have an agreement with the broker as to what your relationship with him will be and even how it may change from time to time. You should not disclose any personal information or disposition to a broker until you have established your relationship with him. The broker will be happy to discuss and explain agency relationships with you.

For more information or to schedule a showing, click here.

505 Williams Ct
Tyler, Tx 75702

Price: $279,900
Property Type: residential
MLS #: 26002757
Area: Smith
Year Built: 1930
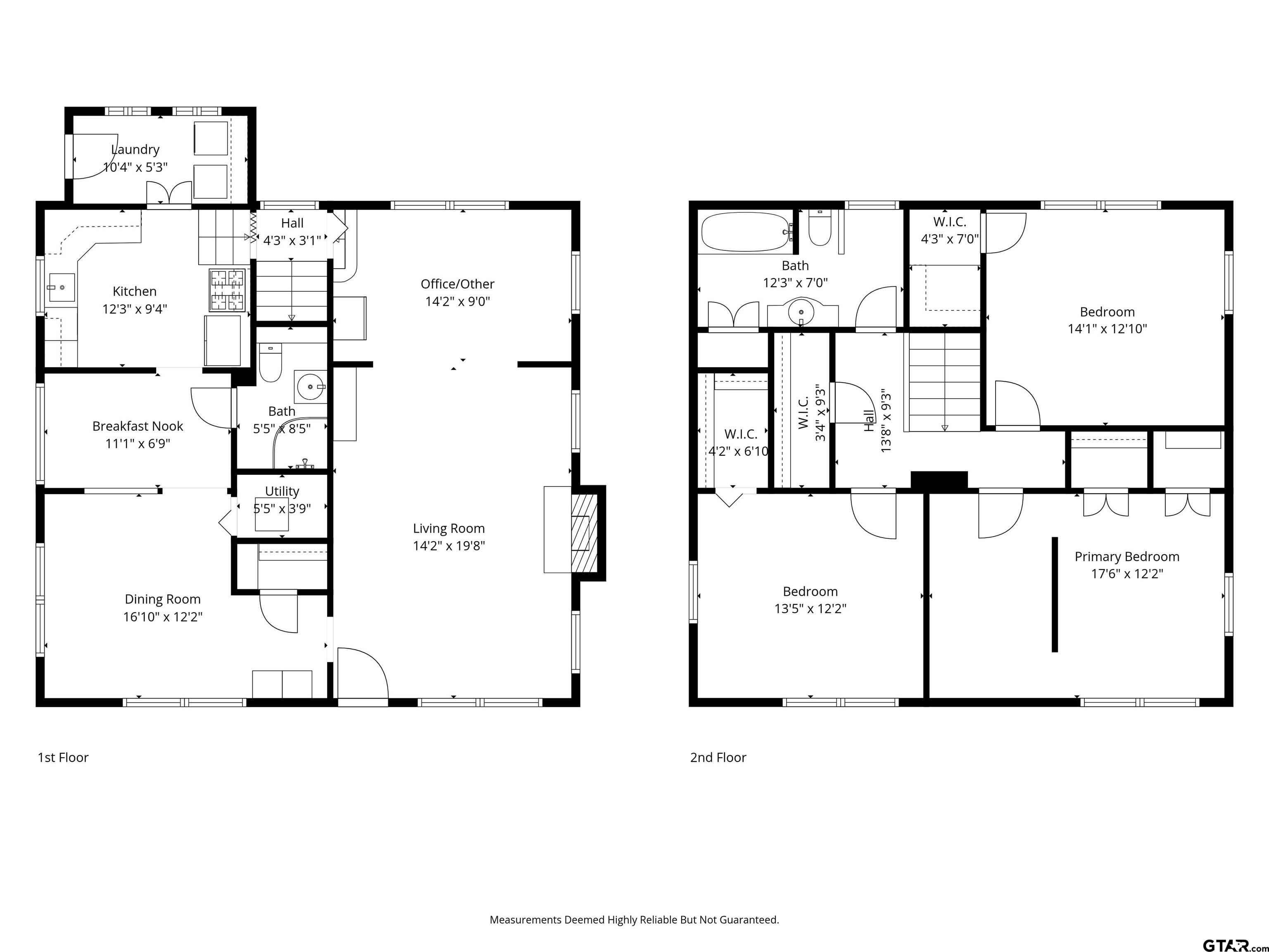
Bedrooms: Three
Bathrooms: Two
Garage: 0
Virtual Tour: Click here to view
COOLING : Central Electric
COOLING : Window Unit(s)
DINING AREAS : Separate Formal Dining
DINING AREAS : Breakfast Room
FENCING : Wood Fence
FENCING : Brick Fence
INTERIOR : Paneling
INTERIOR : Ceiling Fan
INTERIOR : Blinds
KITCHEN EQUIPMENT : Range/Oven-Gas
KITCHEN EQUIPMENT : Dishwasher
OUTBUILDINGS : Storage Building(s)
STYLE : Traditional
CONSTRUCTION : Brick and Stone
FENCING : Chain Link Fence
FIREPLACE : Gas Logs
POOL/SPA : None

Courtesy: Walters, Pamela • The Pamela Walters Group • 903-581-3900

The data relating to real estate for sale on this website comes in part from the Internet Data Exchange (IDX) of the Greater Tyler Association of REALTORS Multiple Listing Service. The IDX logo indicates listings of other real estate firms that are identified in the detailed listing information. The information being provided is for consumers' personal, non-commercial use and may not be used for any purpose other than to identify prospective properties consumers may be interested in purchasing. This information is deemed reliable, but not guaranteed.

This content last refreshed on 02/28/2026 05:30 AM. Some properties which appear for sale on this web site may subsequently have sold or may no longer be available.